4-Bedroom Double-Story Luxury Mansion with Triple Porch (Floor Plan)

Specifications:
- 4,489 Sq Ft
- 4 Beds
- 4.5+ Baths
- 2 Stories
- 2 Cars
Hold everything, folks!
Get ready for a whirlwind tour of a mansion that seamlessly marries the grandeur of luxury with the warmth of home.
Let’s unfold the story of a breathtaking abode, sprawling over 4,489 square feet of sheer elegance, destined to be the setting for your cherished family memories.
Now, you might be wondering, “What sets this mansion apart?”
Prepare to be enchanted.



Imagine a house boasting not just one, but three distinct porches.
Yes, three!
Envision a warm summer night where the first, a beautifully curved porch, welcomes your guests with refreshing drinks.

Offering a taste of the splendor that lies within.
The second porch is your personal oasis, where you can unwind in your comfiest pajamas with a captivating book, letting the bustle of the world drift away.
It’s a family treasure, hidden in plain sight.

And the third?
A haven for the ultimate host, ready to transform any gathering, from sunlit brunches to starlit celebrations, into unforgettable moments.
Step through the front door, and the majestic foyer unfurls the home’s grandeur, offering a peek from the entrance to the rear with an elegant pathway to the library.

This isn’t just any library.
It’s a sanctuary flanked by a cozy fireplace and bookshelves, promising endless adventures and quiet moments alike.
For those who might prefer screen over page, picture settling in with a good read by the fire, a nostalgic nod to pre-streaming relaxation.

Moving on, the family room is where the heart of the home beats the strongest.
It’s not merely a room; it’s the stage for life’s most genuine moments.
Here, laughter and tears are shared freely, memories are made, and connections deepen.

With the added bonus of easy access to nocturnal s’more-making escapades.
The culinary dream space, a.k.a. the kitchen, awaits to fulfill every epicurean desire.
Spacious enough for dance-offs, it features a breakfast bar for casual dining, a dedicated breakfast nook.

A walk-in pantry for those midnight cravings, and a formal dining area for upscale dinners.
Here, the adage about too many cooks simply doesn’t hold water.
Then there’s the master bedroom, a sanctuary designed for ultimate relaxation and privacy, boasting lavish walk-in closets for the fashion-conscious.

It’s a serene escape, ready to whisk you away from the cares of the world.
And for the adventurers returning with the great outdoors at their heels?
The back mudroom stands guard, ensuring no trace of the outside world mars the interior sanctum.

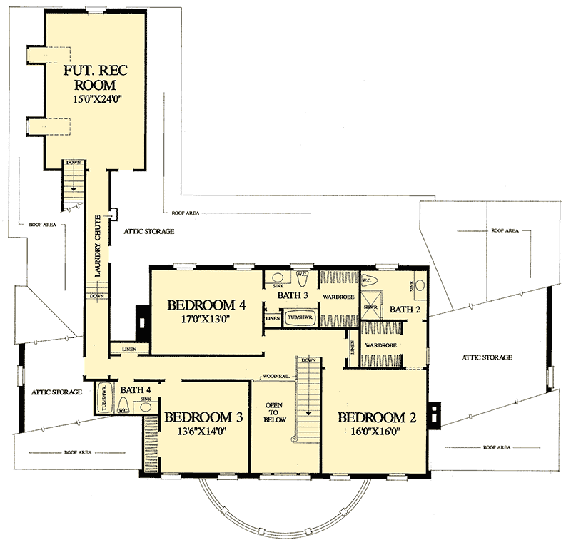
The magic continues upstairs, with three additional bedrooms, each a domain unto itself with private baths and walk-in closets.
Luxury meets privacy, ensuring every occupant feels like royalty.
And let’s not forget the bonus space above the garage, ripe for transformation into your heart’s desire, be it a game room, home theater, or a secluded retreat for your hobbies.

So there it is—a mansion that transcends mere living spaces, embodying a lifestyle of refined ease and splendid comfort.
This is more than a house; it’s a journey into a life of luxurious tranquility, where every day is a celebration of fine living.
Dare to make this dream house your home.
Remember, home is not just where you are; it’s how you feel.
And in this architectural masterpiece, every moment is an experience of magnificence.








