3-Bedroom Single-Story Contemporary Home With Extra Game Room (Floor Plan)

Specifications:
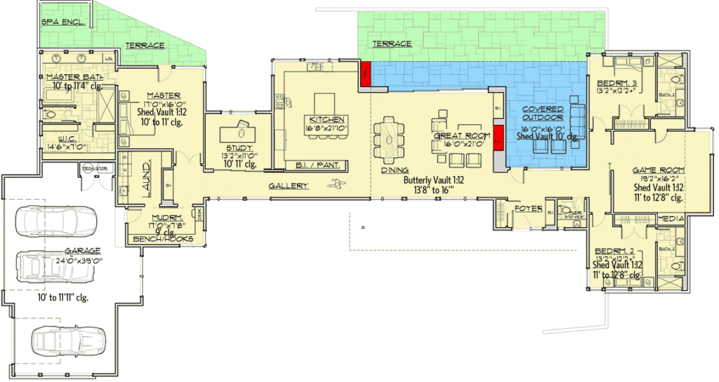
- 3,586 Sq Ft
- 3 Beds
- 3.5 Baths
- 1 Stories
- 3 Cars
Hello there, future homebody, visionary, or maybe you’re someone.
Who just can’t help but fall head over heels for an eye-catching home design.
Let’s embark on an adventure exploring a home that’s anything but ordinary.
The breathtaking Contemporary House Plan, complete with a Game Room.
Imagine a sprawling sanctuary covering 3,586 square feet, home to 3 inviting bedrooms and 3.5 opulent bathrooms.





Here’s where it gets interesting.
It’s all laid out on a single floor, including a spacious garage.

that comfortably fits 3 cars, protecting them from the unpredictable outdoors.
And we’re just scratching the surface!

Envision a home that takes the concept of ‘openness’ to new heights.
The living spaces are so grand and interconnected.

That you could, theoretically, send a paper airplane gliding from the kitchen.
And with a touch of finesse (plus a dash of luck), watch it land smoothly in the game room.

Picture the joy of playing fetch indoors with your pets.
Stretching the fun across the vast openness of your living area.

And when it comes to announcing that dinner is ready.
The acoustics will ensure your call reverberates with importance!

Venturing further into this architectural wonder.
The right wing unveils two cozy bedrooms and an enormous game room.

Wait for it—equipped with pocket doors.
Yes, you can now shut away the sounds of spirited FIFA matches.

Garage band sessions, or energetic fitness routines.
A simple slide of those doors, and voilà, your peace is restored.

But the magic doesn’t end indoors.
This plan introduces a seamless flow to outdoor living through a folding glass door system.

Creating an effortless connection to your personal retreat.
Whether it’s enjoying a morning coffee in the freshness of dawn or throwing a shaded summer barbecue.

The outdoor area is set to become your go-to spot for relaxation and social gatherings.
Now, for the food lovers and culinary wizards.

The heart of this home undoubtedly pulsates within the kitchen.
It’s a chef’s paradise brought to life.

boasting endless counters and space galore.
Ready to welcome not just one, but multiple cooks.

Strolling towards the master suite, you’ll find a tranquil study.
A sanctuary for work-from-homers or late-night readers.

Offering the perfect blend of quiet and productivity.
And then, we reach the crowning jewel—the master suite.

It transcends mere living space, offering an immersive experience of privacy and tranquility.
Complete with a private terrace and a spot designated for a hot tub.

Ensuring that relaxation is never more than a few steps away.
This house plan transcends the ordinary.

It’s a blueprint for a lifestyle rich with laughter in the game room.
Tranquil moments on the sun-kissed terrace.

And culinary feats in a spacious kitchen.
It’s about serene retreats in a secluded suite.

A testament to embracing life’s full spectrum.
Yet, a house only transforms into a home when it’s infused with memories, laughter, and love.

The invitation stands open.
It’s merely a step away.

This Stunning Contemporary House Plan with Game Room extends its open arms.
Challenging your perceptions of living spaces.

Merging exquisite design with unmatched luxury and practicality.
It promises more than just a dwelling.

It’s the realization of a dream.
So, are you prepared to step into the future and start building your dream home today?








